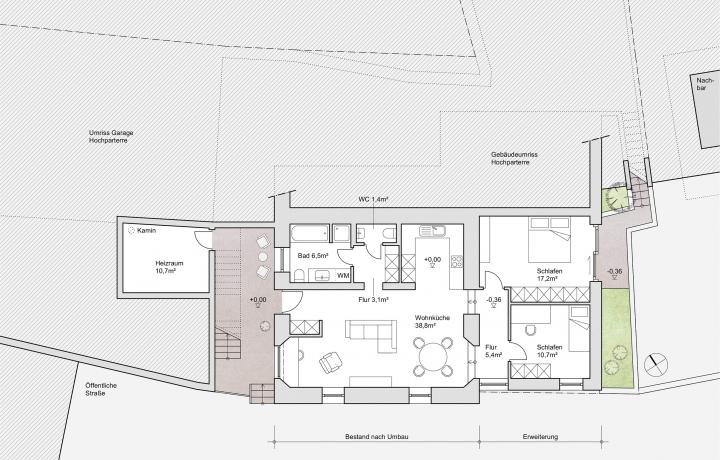
Erweiterung Haus F

Objekt
Weitere Informationen siehe Homepage Kokumara